发布:2024-08-11 11:21   
您当前的位置:优房在线>二手房>出售 海棠花园 147平 简装三室 高层高楼层
>
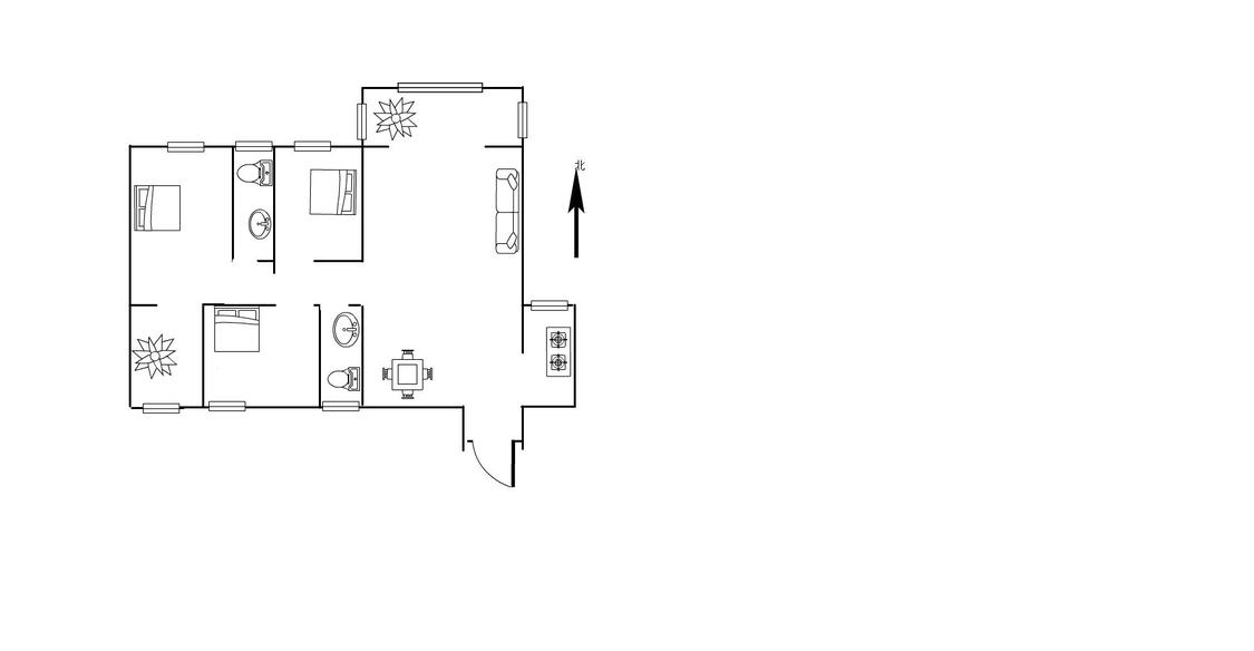
出售 海棠花园 147平 简装三室 高层高楼层
72万
147平方米
3室2厅2卫
朝向:
南北
楼层:
第28层/共33层
装修:
简装
年代:
类型:
住宅 
地址:
大庆路
置业顾问
18991728999
微信扫码拨号

房源描述

房源图片

地图交通

小区简介

同小区房源

房源描述

房源配套: 天然气 供暖 电视 电梯 空调
精装房,核心地段 位置好,生活方便,配套成熟度高,满足日常衣食住行。

房源图片

地图交通

小区简介

小区名称:海棠花园 项目类型:
物  业  费:0.00元/平方米·月 物业公司:
开  发  商:
绿化率:%
海棠花园
海棠花园本月均价: 4225 元/平米 该小区出售房源:4 套该小区出租房源:0 套

关注该小区 查看小区详细信息